dwell The Statesider
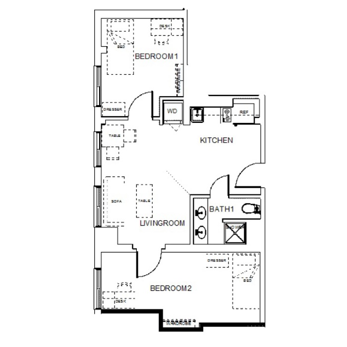
dwell The Statesider provides twice the living experience for students with our room-sharing option. It is the preferred off-campus apartments in Madison, Wisconsin. Just minutes away from the University of Wisconsin, restaurants, and shops.



















































